
Order Wagner Nursery Inc eGift Cards
Order Wagner Nursery Inc eGift Cards online and give the perfect gift.
Send gift cards instantly to anyone. Powered by Square Gift Cards
Landscape Design and Sod Cedar Rapids, IA Relies On
Landscape Design and Sod Cedar Rapids, IA Depends On
Let the design team at Wagner Nursery Inc design and install the perfect landscape for your property. Our team will make your lawn stand out when it's completed whether we install new sod homeowners love or add other improvements to your property.
Our lead designer is a member of the American Society of Landscape Architects and has over 35 years of experience developing commercial, institutional, and residential landscape designs throughout the tri-state area of Iowa, Wisconsin, and Illinois. Whether you're a homeowner or a business owner, we have you covered.
Discuss your dreams and needs with our professionally trained and experienced landscape designers. Give us a call today at (563) 231-4641 and learn why we're the top choice for sod in Cedar Rapids, IA.

We are proud to offer shopping options, including in-person, phone call orders, and curbside pickup, as well as many delivery options for everything we sell, from bulk material to all our plants, trees, and other products! Thank you for your patronage!
Our 8-acre nursery and garden center provides our clients with the best selection of northern grown nursery stock in the area.
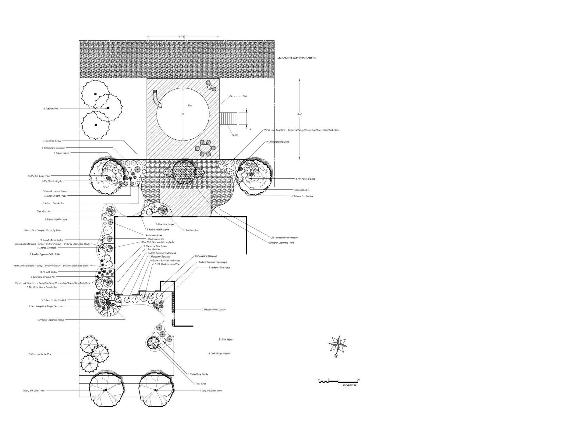
Computer-Aided Drafting (CAD): CAD Design
Using state-of-the-art CAD design programs, information gathered in the analysis state of the project, and our experience in landscape design and construction, we develop the following:
Site analysis
We come out to survey the site, and take pictures and measurements. We walk around and make notes of the client's wants and needs for what they envision the site to be.
Preliminary Design
Conduct a meeting between the client and the design team to review a preliminary plan, discuss alternatives, phasing out stages of the project and probable costs. It is our experience that the budget and projected cost play a major role in establishing the extent and quality of the product/project.
The process of outstanding landscaping begins with quality design and a game plan.
Our designers use innovative design solutions, state-of-the-art computers, and software to develop your landscape and irrigation design.
Our lead designer is a member of the American Society of Landscape Architects and has over 35 years of experience developing commercial, institutional, and residential landscape designs throughout the tri-state areas of Iowa, Wisconsin, and Illinois.
With the use of state-of-the-art equipment and innovative design techniques, the client is able to implement the design over a period of time.
Final Design
Conduct a meeting between the client and the design team to review the final plan(s), schedule, and final construction costs.
Computer-Aided Full Visual Picture Design: CAP Design
The team at Wagner Nursery Inc. came across a new design program a few years ago, and since then it has become an integral part of our business.
This program works wonders for clients who want a visual. It literally paints a picture of what the area will look like three to five years down the road with your house and property integrated right into the design.
We have examples of this in the gallery to the left and below. To start, we take a physical picture of the actual spot on the site that will be designed. This picture can be of a bare spot or new construction or can be of an area that already has existing landscaping installed.
After the photo or photos have been taken, our designers will then edit and design the photos based on what the client wants and our professional experience.
The designers then go through this new design with the client and make some changes, if needed. After this is completed and agreed upon the project is thrust into action and the construction phase begins!
Scaled Hand Drawing Design
Using information gathered in the analysis state of the project and our experience in landscape design and construction, we develop the following: This drawing is done to scale and is all done by hand by a professional, experienced landscape designer.
Site analysis
We come out to survey the site and take pictures and measurements. We walk around and make notes of the client's wants and needs for what they envision the site to be.
Preliminary Design
Conduct a meeting between the client and the design team to review a preliminary plan, discuss alternatives, phasing out stages of the project and probable costs. It is our experience that the budget and projected cost play a major role in establishing the extent and quality of the product/project.
The process of outstanding landscaping begins with quality design and a game plan.
Our designers use innovative design solutions to develop your landscape design.
Our lead designer is a member of the American Society of Landscape Architects and has over 35 years of experience developing commercial, institutional and residential landscape designs throughout the tri-state areas of Iowa, Wisconsin, and Illinois.
With the use of state-of-the-art equipment and innovative design techniques, the client is able to implement the design over a period of time.
Final Design
Conduct a meeting between the client and the design team to review the final plan(s), schedule, and final construction costs.



































Share On: